www.alexopoulospartners.gr
change to english
ΑΡΧΙΚΗ ΣΕΛΙΔΑ
ΠΡΟΦΙΛ
ΕΡΓΑ ΠΟΛΙΤΙΚΟΥ ΜΗΧΑΝΙΚΟΥ
ΑΡΧΙΤΕΚΤΟΝΙΚΗ
ΠΕΡΙΒΑΛΛΟΝ
ΕΠΙΚΟΙΝΩΝΙΑ
ΒΙΟΜΗΧΑΝΙΑ
Rom Oil Factory
Shed 4 & 5
Flour Mills of Nigeria
Snack Factory
GANTRY
ICSS Α.Ε.
ΜΟΤΟΔΥΝΑΜΙΚΗ Α.Ε.E.
BIC-VIOLEX S.A.
Αφοί ΠΑΠΑΓΙΑΝΝΑΚΗ Ε.Π.Ε.
ΕΔΡΑΣΗ-ΨΑΛΙΔΑΣ Α.Ε.
ΧΑΛΥΒΟΥΡΓΙΚΗ
NUTRIA Α.Ε.
KERAKOLL A.E.
ΠΛΑΣΤΙΚΑ ΚΡΗΤΗΣ Α.B.E.E.
ΚΥΛΙΝΔΡΟΜΥΛΟΙ ΛΟΥΛΗ Α.Ε.
ΓΡΑΦΕΙΑ
ΔΗΜΟΣΙΑ ΚΤΙΡΙΑ
ΕΜΠΟΡΙΟ & ΑΝΑΨΥΧΗ
ΚΑΤΟΙΚΙΑ
ΥΠΟΔΟΜΗ
Rom Oil Factory
Shed 4 & 5
Flour Mills of Nigeria
Snack Factory
GANTRY
ICSS Α.Ε.
ΜΟΤΟΔΥΝΑΜΙΚΗ Α.Ε.E.
BIC-VIOLEX S.A.
Αφοί ΠΑΠΑΓΙΑΝΝΑΚΗ Ε.Π.Ε.
ΕΔΡΑΣΗ-ΨΑΛΙΔΑΣ Α.Ε.
ΧΑΛΥΒΟΥΡΓΙΚΗ
NUTRIA Α.Ε.
KERAKOLL A.E.
ΠΛΑΣΤΙΚΑ ΚΡΗΤΗΣ Α.B.E.E.
ΚΥΛΙΝΔΡΟΜΥΛΟΙ ΛΟΥΛΗ Α.Ε.
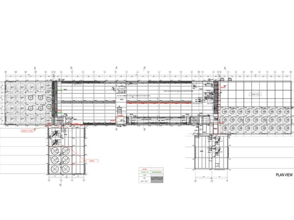
Flour Mills of Nigeria - Υπο κατασκευή
Flour Mills of Nigeria - Υπο κατασκευή
Τοποθεσία έργου
Apapa, Lagos – Nigeria
Ομάδα μελέτης
Στατική Μελέτη: Γραφείο Μελετών Α.Αλεξόπουλος
Χρονολογία έργου
2010-2011
Designed by AK design